Select Key Projects 

A selection of commercial interiors, workplace environments, and branded spaces designed to support connection, functionality, and growth. Each project reflects a balance of thoughtful planning, creative vision, and collaborative execution.

 "...she is a leadership caliber interior designer who will gain the trust and confidence of clients and staff." 

Robert Keane, Managing Principal

WDG Architecture, PLLC

Taft / – Washington, DC

Role: Lead Designer, Senior Project Manager, and Mentor

 

Served as Lead Designer, Project Manager, and Junior Designer Mentor for Taft’s new 22,000-square-foot Class A office space at 200 Massachusetts Avenue NW. The project was envisioned as a modern, efficient workplace that supported the firm’s operational needs while reinforcing its brand and culture. The program included 28 private offices, collaborative workspaces, and hospitality-driven event areas, with the space thoughtfully planned to allow for future expansion.

 

Led the architectural design process, working closely with Taft stakeholders to develop and refine design concepts that aligned with their goals. My responsibilities included space planning, full drawing execution, FF&E coordination, vendor collaboration, permit submission, and oversight throughout construction administration. I also mentored junior designers, providing guidance through documentation and construction phases to ensure quality and consistency.

 

This project elevated Taft’s presence in Washington, DC, and supported the firm’s broader strategy of attracting top talent and enhancing the client experience.

 

Photography Provided by OPX Global

GW University Flagship Campus Store – Washington, DC

Role: Project Director, Senior Project Manager, and Designer

 

Served as Project Director, Project Manager, and Designer for the new-build, two-story GW University Flagship Campus Store, an approximately 16,000-square-foot retail space located within a Class A building. Led the interior architectural design and overall execution, collaborating closely with the Principal in Charge and an architectural drafter based in Dubai to develop the space planning, ceiling features, lighting design, and main entry elements.

 

Worked directly with the university’s retail vendor, who provided the floor fixture layout and finish selections, as well as various other vendors and the GW University team to ensure all design components aligned with the broader architectural vision. My responsibilities included participating in the initial client interview, preparing project proposals and preliminary schedules, coordinating additional services, managing the design schedule, and overseeing the project through the permitting phase.

 

Departed WDG at the start of the Construction Administration phase, having established a strong foundation and clear design direction for the project’s successful execution.

 

Photography Provided by WDG

1333 New Hampshire Avenue NW – Washington, DC

Role: Lead Designer and Senior Project Manager

 

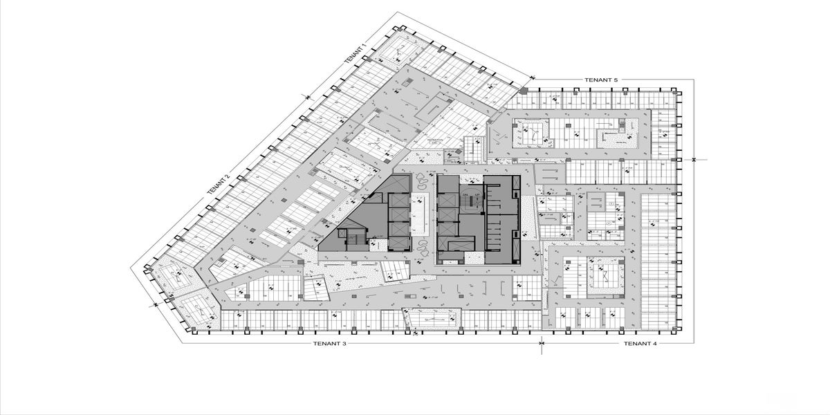
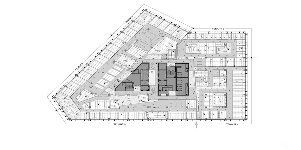
Served as one of the Lead Designers and the Project Manager for a 24,600-square-foot project on the 4th floor of 1333 New Hampshire Avenue NW. The scope included five spec suites, elevator lobby and public corridors, created in collaboration with the WeWork team, The Meridian Group (TMG), JLL, and OPX Principals.

 

The design emphasized flexibility, providing adaptable layouts that could accommodate tenant expansion or contraction. Provided space planning, high-end finish selections, lighting designs, and occupancy planning while ensuring compliance with building codes and egress requirements. Managed coordination with the general contractor, MEP and structural engineers, and furniture vendors, ensuring alignment with project goals, budgets, and schedules. Participated in the client interview process, design development, oversaw construction documentation, and supported the team throughout construction administration.

 

The design successfully blended perimeter offices with open work areas, making it easy to adjust ceilings, walls, mechanical systems, and finishes to meet evolving tenant needs. Also coordinated directly with a tenant for customized upgrades and furniture selection.

1800 K Street NW – Washington, DC

Role: Lead Designer and Senior Project Manager

 

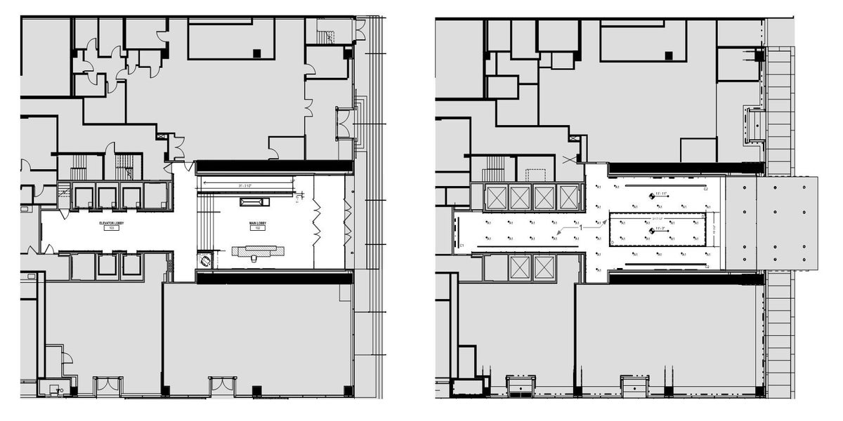
As one of the Lead Designers and the sole Project Manager, I directed multiple renovation projects totaling approximately 50,000 square feet at 1800 K Street NW. The scope included a main lobby renovation, two spec suites, a private tenant buildout for BB&K, a rooftop elevator lobby renovation, and a new conference center including Transwestern’s Property Management suite.

 

Managed the projects through all phases, beginning with initial client interviews and continuing through design development, FF&E selection, construction documentation, and construction administration. Prioritized building strong client relationships, coordinating closely with vendors and consultants, and leading the internal team to deliver high-quality, budget-conscious results that met the project's goals and design vision. This project also allowed me to apply my experience in art consulting, partnering with Judy Sherman Art Consulting to curate custom artwork selections for the lobby renovation. 

 

The final designs delivered flexible, modern amenities that revitalized the property and strengthened its appeal to prospective tenants.

 

Renderings by Naredeen Mikhaiel

Wilkinson Barker Knauer, LLP (WBK) – Washington, DC

Role: Designer and Project Manager

 

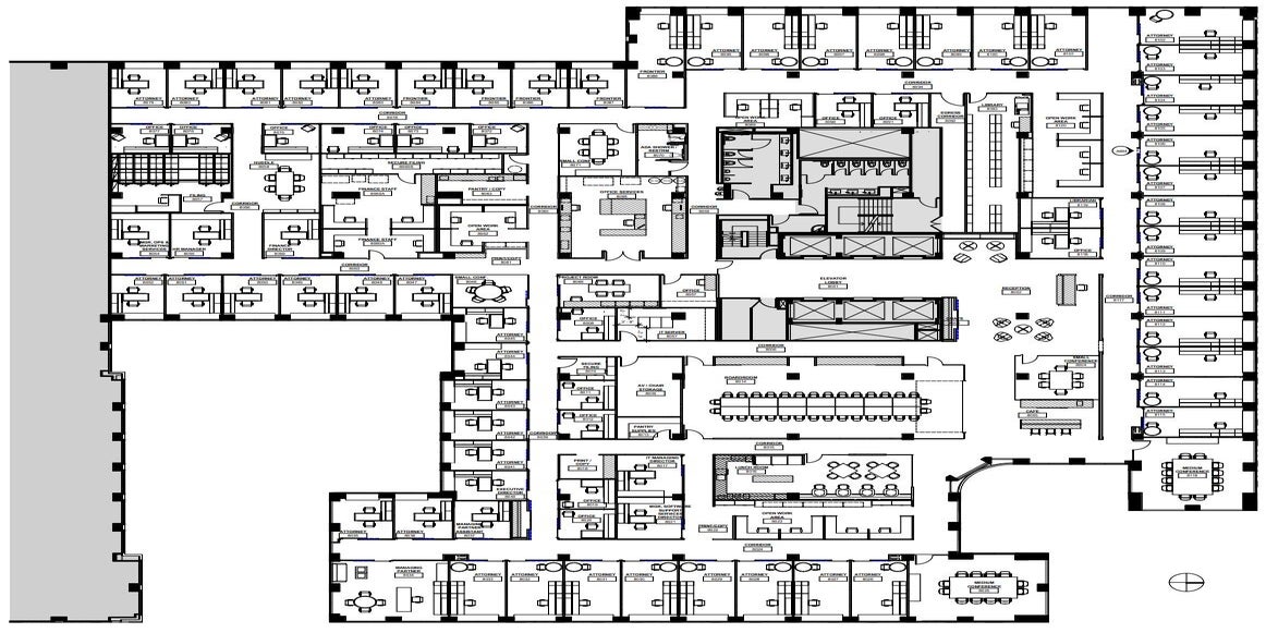
Served as Designer and Project Manager for WBK’s new 50,000-square-foot Washington, DC office. Focused on reimagining the traditional law firm experience, emphasizing collaboration, communication, brand identity, and flexibility.

 

A key design goal was to create multipurpose areas that could function as meeting rooms and easily transition into event spaces for hosting wine tastings, speaking engagements, and other firm-wide events. We introduced standardized office sizes, maximized transparency through glass-fronted offices and conference rooms, and integrated bold design elements, creative fixtures, and curated art installations. Breaking away from conventional law office models, the space fostered connection, adaptability, and a dynamic work environment that reflected WBK’s forward-thinking culture.

 

I was involved in all project phases from initial client interviews through design development, FF&E selection, construction documentation, and construction administration. The success of the project led to two additional expansion projects with WBK, reinforcing strong client relationships.

 

Photography by Judy Davis

Capitol Crossing – Washington, DC

Role: Lead Designer and Project Manager

 

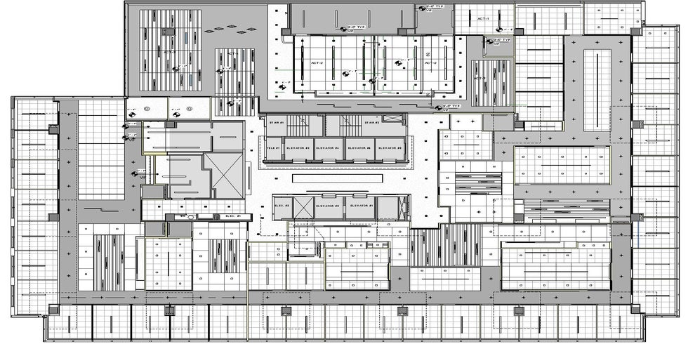
As one of the Lead Designers and the Project Manager for Capitol Crossing initiatives, I contributed to shaping one of Washington, DC’s most significant new developments. OPX was selected as Architect of Record for multiple interior projects across the site. I had the opportunity to lead several key assignments focused on enhancing tenant and public spaces.

 

The scope included occupancy planning, the design and execution of a state-of-the-art conference center, two high-end fitness centers at 200 and 250 Massachusetts Avenue, multiple spec suites, private tenant buildouts, and elevator lobby and public corridor designs. Each project reflected the Class A modern standards of Capitol Crossing, balancing innovation, functionality, and flexibility to attract and meet tenant demands.

 

Worked closely with Capitol Crossing Advisors from initial client interviews through design development, FF&E selection, construction documentation, and construction administration. Through strong client and vendor coordination delivered thoughtful, adaptable spaces that supported the broader vision of Capitol Crossing as a vibrant, modern workplace destination.

 

Photography Provided by Capitol Crossing Advisors